ГК “Территория жизни” - в нашей “трешке” 4 комнаты
- 20 мая 2021
- administrator

Кто из нас не мечтает о просторной квартире, где хватило бы места всем? Особенно это актуально для больших семей. Мама мечтает о просторной гардеробной, а глава семейства - о собственном кабинете или зоне, где можно было бы поработать в тихой обстановке. А вот большая гостиная - стала бы местом для встреч за большим столом со своими друзьями и родными.
Группа компаний “Территория жизни” предлагает огромный выбор трешек , в которых вы сможете воплотить любые задумки по организации пространства вашей квартиры.
В новом жилом комплексе комфорт-класса “Лугометрия” от ГК “Территория жизни” представлен большой выбор не только классических квартир, но и евро-формата с отделкой “Sмart PRO” и “Всё включено!”. В комплектацию входит чистовая отделка, дизайнерская кухня со встроенной техникой, готовый санузел и стиральная машина. Приятным бонусом для покупателей трешек станет и посудомоечная машина.
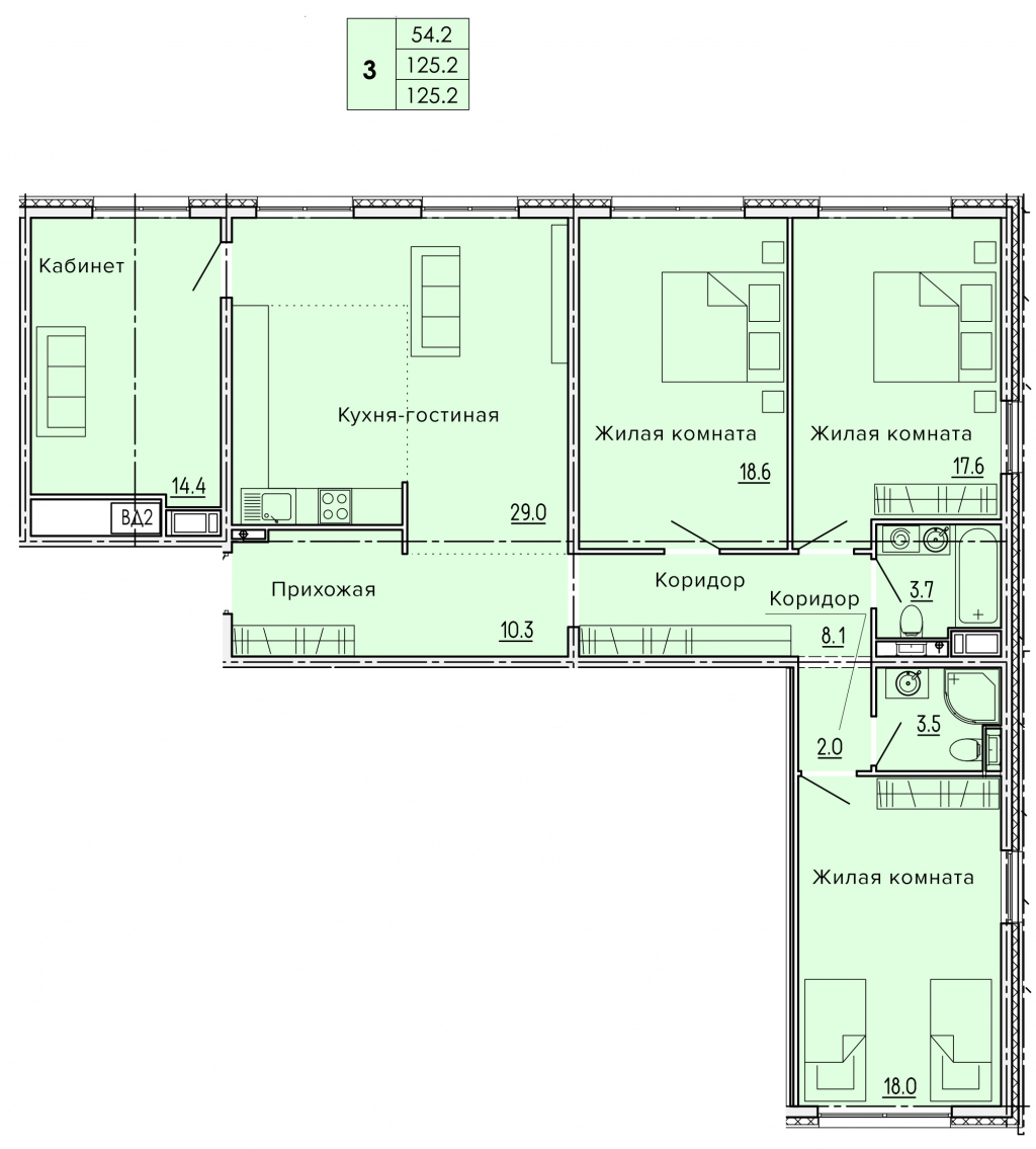
Отдельного внимания заслуживают “семейные” трехкомнатные квартиры с площадью до 125 квадратных метров, в которых точно хватит места всем. Особенность таких квартир - наличие дополнительной, четвертой комнаты. Ее можно использовать как кабинет или же оформить пространство как мини-кинозал или гардеробную.


Кухня-гостиная впечатляет - 29 квадратных метров для приятного общения и обедов всей семьёй. В такой квартире вы будете ощущать себя свободно и легко. У каждого члена семьи будет свой уголок, где можно заняться любимым делом.
Уникальная особенность ЖК “Лугометрия” - комфортные квартиры и прекрасная внутридомовая территория, где есть все - спортивные зоны, зоны отдыха для взрослых и детей, набережная цветов с перголами где можно отдохнуть.
“Лугометрия” - это жилая природа в черте города. Именно такой подход применяется в данном жилом комплексе от группы компаний “Территория жизни”. Тем более сейчас, в оставшийся период действия льготной ипотеки, появилась возможность приобрести жилье по ставке от 2,05%* по программе субсидирования от “Сбербанка” и “Территории жизни”. Данное предложение распространяется на все жилые комплексы ГК “Территория жизни” и действует до 28 мая 2021 года.

Узнать подробности вы можете на нашем сайте территорияжизни.рф и в офисе продаж ЖК “Лугометрия”. Ознакомиться с полным каталогом квартир - на сайте лугометрия.рф. Телефон: +7 (8412) 203-000.
*Ипотека предоставляется ПАО Сбербанк. Ставка от 2,05% действует при условии проведении сделки с услугой «Электронная регистрация права собственности». Полные условия на сайте domclick.ru, sberbank.ru.
